Skip to content
Search Properties
Gallery Video Map Street View Floorplan Local Area Guide

Ivy House, Drumlougher, Carrigans, Co. Donegal, F93 E6DY

Rated BER E1

Asking Price: POA
Status: Sale Agreed

  • 2 Bedrooms
  • 2 Bathrooms
  • 1 Receptions
  • 71.1sq. metres

Charming 2 Bed Stone Cottage along the roadside between Newtowncunningham & Carrigans… 

 

A fantastic starter home, this attractive two-storey stone built detached property is ideally positioned along the roadside, offering both convenience and character. Featuring oil-fired central heating and modern PVC double-glazed windows and doors, the home combines traditional charm with comfortable, efficient living.

The accommodation includes a bright and welcoming living space, a practical downstairs toilet, and two well-proportioned bedrooms served by an upstairs shower room. Outside, the property benefits from a small side garden ideal for low-maintenance outdoor enjoyment. Generous private parking is available, with space for 3–4 vehicles — perfect for families or visitors.

This delightful property presents an excellent opportunity for first-time buyers or those seeking to downsize to a manageable and well-located home.

 

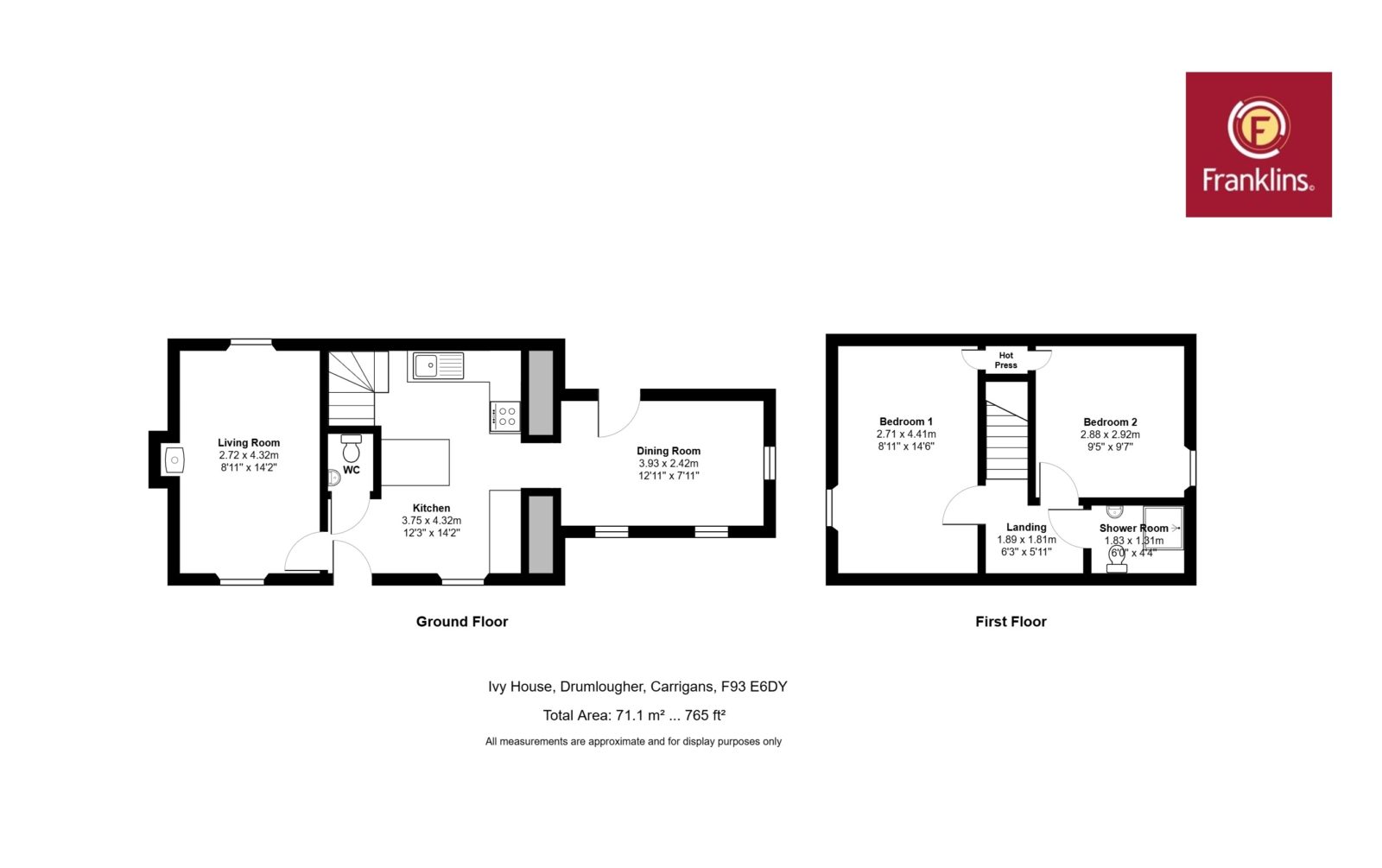
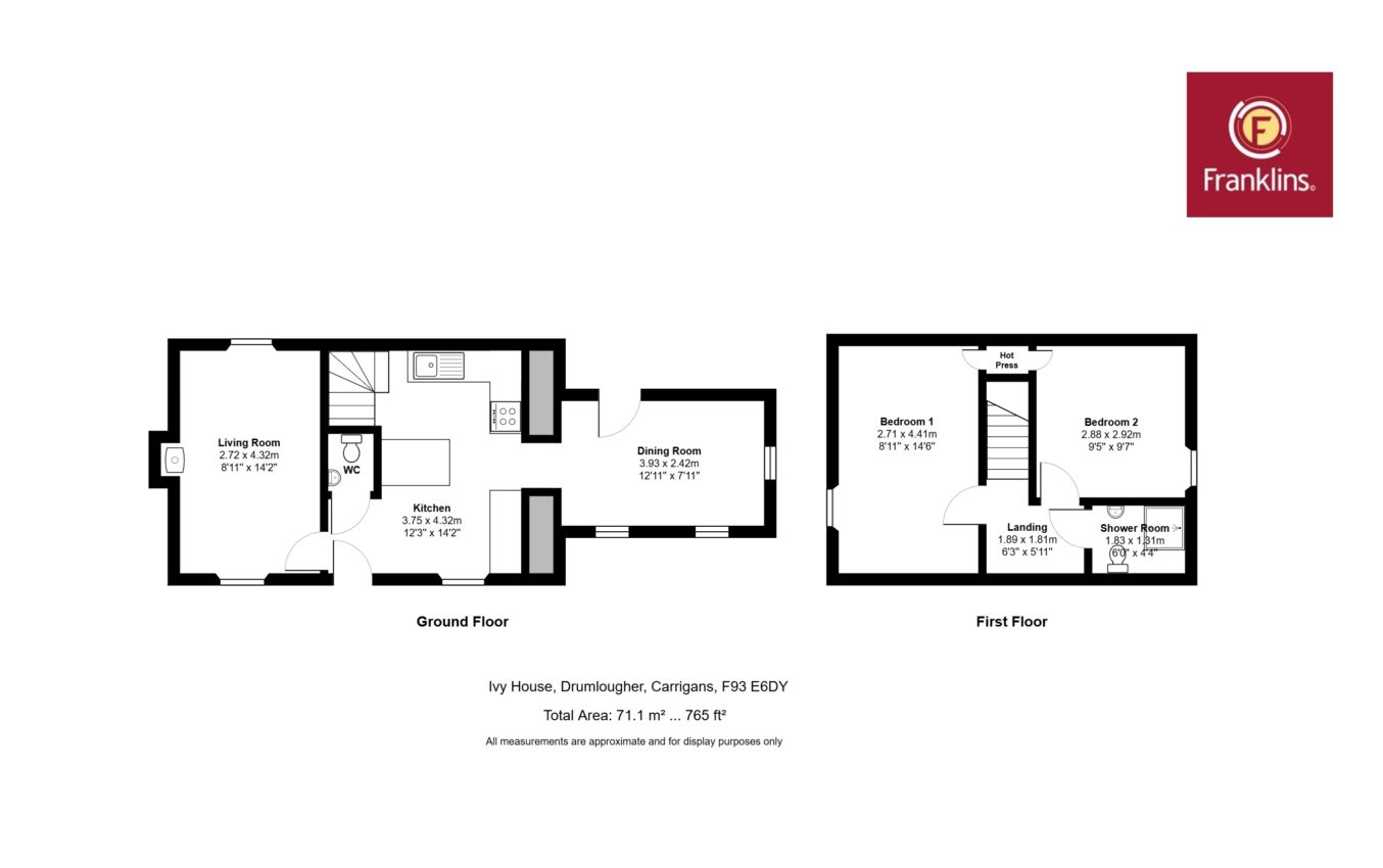
The accommodation is arranged as follows;

Part glazed PVC front door to;

Kitchen; 3.75m x 4.32m modest range of wall & base units, breakfast bar, works surfaces with tile surrounding walls, stainless steel single drainer sink unit, plumbed for washing machine, 4 ring electric hob & oven with extractor hood over, wide plank walnut laminated flooring, opening into;

Dining Room; 3.93m x 2.42m wide plank walnut laminated flooring, TV point, half glazed white PVC door to outside

Living Room; 2.72m x 4.32m wide plank walnut laminated flooring, solid fuel burning stove with back boiler, TV point, telephone point

WC; white two-piece suite, tiled splashback to the wash hand basin, wide plank walnut laminated flooring

Carpeted stairs to 1st floor;

Landing; 1.89m x 1.81m

Bedroom 1; 2.71m x 4.41m laminated wooden floor

Bedroom 2; 2.88m x 2.92m laminated wooden floor

Shower Room; 1.73m x 1.31m white two-piece suite with separate full tiled shower enclosure, tiled flooring

Outside; Kerbed & gravel driveway with parking for 3 – 4 vehicles, (side) garden laid to lawn with embankment to rear boundary, garden shed

 

  • Stone built cottage
  • Constructed 1829
  • 2 bedrooms
  • OFCH
  • Double glazed windows & doors
  • Newtowncunningham 3km / Carrigans 5km

 

By putting the Eircode F93 E6DY into Google maps on your smart phone the app will direct interested parties to this property.

 

 

Share

Franklins property details are intended as a guide only and do not form part of a contract, nor are they guaranteed. Buyers should satisfy themselves as to any information contained therein, measurements, structural condition and boundaries. Franklins are not chartered surveyors. Prospective buyers are recommended to employ their own surveyor/architect for independent guidance and advice.

Local Property Tax Calculator

This service allows you to calculate the amount of Local Property Tax (LTP) due on your property for next year.

Instructions

  1. Select the desired year
  2. Select your Property band
    (eg. A property valued between €0 - €240,000 falls into Band 1)
  3. The total amount of LPT due on your property will be displayed at the bottom
More information on Local Property Tax

* Denotes a required field.


How much will it cost?

Property Value
Deposit
Payment Term
Interest Rate *
Upfront Fee *
Overall Cost

Monthly Payments

0

Capital + Interest (Inc. Fees)

*Fixed until then % (Variable). **Loan amount includes fees added to loan.

Important Notice :
The above information is valid as at today's date. The information on the quotation is indicative and does not constitute a loan offer.
Mortgage Advisors and Consumers should not rely on these indicative quotations or rates of interest when considering a particular mortgage/loan product.

WARNINGS:
The cost of your monthly repayment may increase.
If you don't keep up your repayments you may lose your home.
If you do not meet the repayments on your loan, your account will go into arrears. This may affect your credit rating, which may limit your ability to access credit in the future.
You may have to pay charges if you pay off a fixed-rate loan early.


Stamp Duty Calculator

This service allows you to calculate the amount of Stamp Duty due on your property.

Instructions

For properties valued up to €1 million, the new rate is
1.0% of the full value. For properties valued over €1
million, the rate of 1.0% applies to the first €1 million
and a rate of 2.0% applies to the balance.

The following rates of stamp duty apply to all non residential property:

Rates

Property Value Rate
Up to €1,000,000 1.00%
Balance 2.00%
Property value Stamp duty Effective stamp duty rate

Franklins property details are intended as a guide only and do not form part of a contract, nor are they guaranteed. Buyers should satisfy themselves as to any information contained therein, measurements, structural condition and boundaries. Franklins are not chartered surveyors. Prospective buyers are recommended to employ their own surveyor/architect for independent guidance and advice. PSRA Licence 001814

© 2026 Franklins Estate Agents | All rights reserved